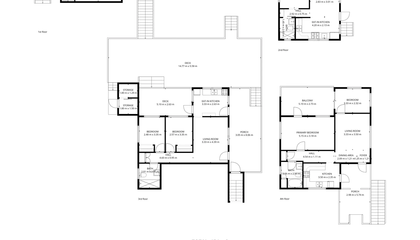
273 Contant/EnighedSt John, VI
Offered at$2,495,000
5 Beds
4 Baths
4,160 SqFt
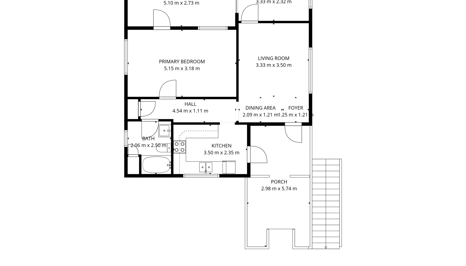
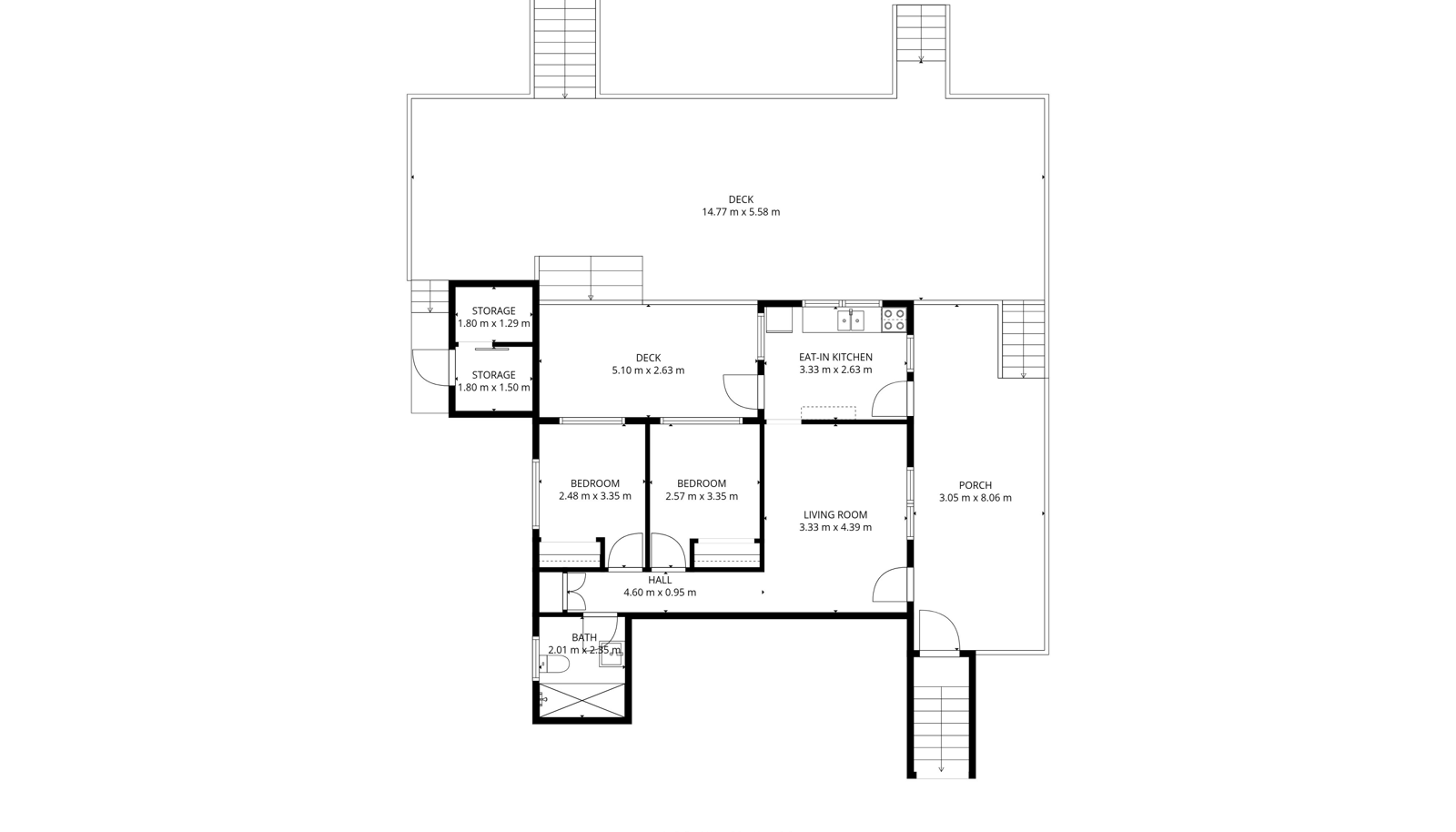
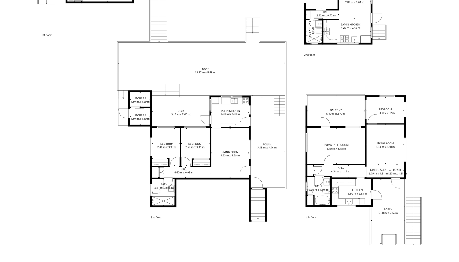
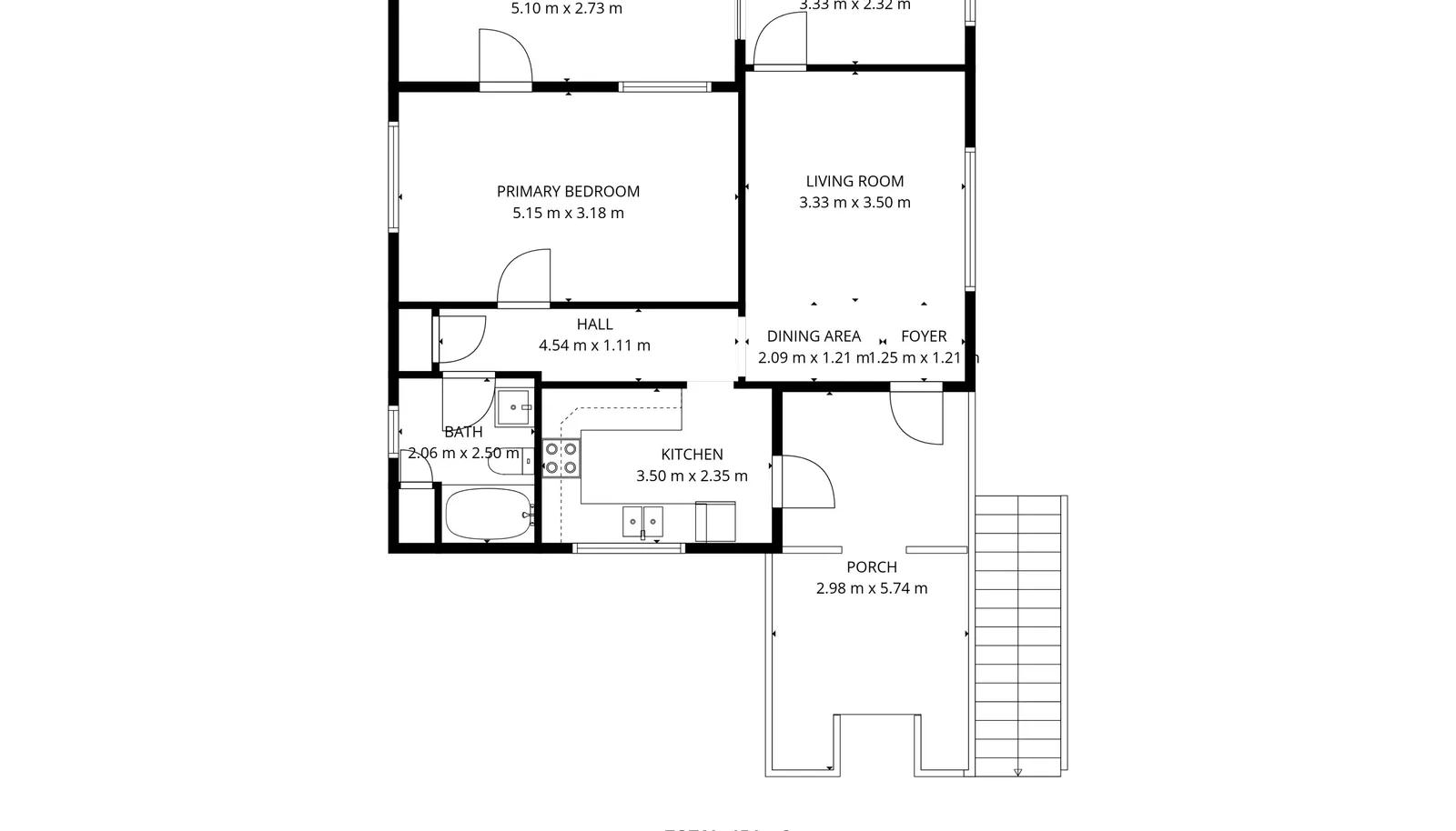
Cruz Bay Villas is a vibrant, colorful multi-unit property located directly in the heart of Cruz Bay. Just steps from restaurants, shopping, and the ferry, this lively in-town building offers unmatched convenience and strong investment potential. Each unit features cheerful Caribbean style and private outdoor space, making it appealing for both visitors and residents. With a proven history of successful short-term and long-term rentals, the property delivers steady income... Read More
Gallery













































Prev
Next
Location
273 Contant/Enighed, St John, VI 00830Get Driving DirectionsContact Us
